01 DESCRIPTION

 

STEREO COMMONS

01 DESCRIPTION

02 IMAGES

03 PROCESS

04 INFORMATION

 

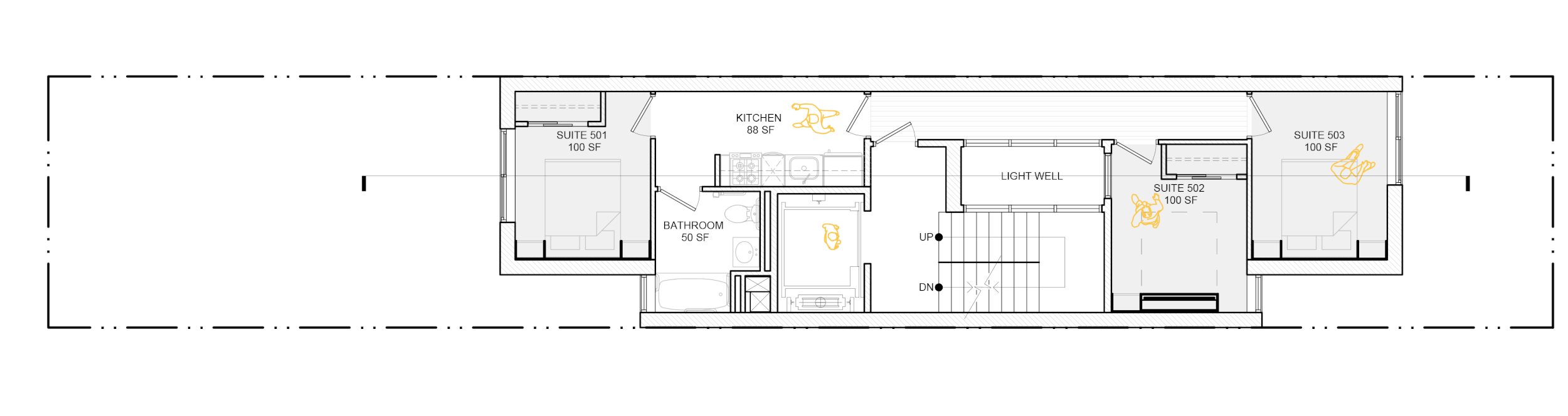
Stereo Commons proposes a modular co-living model that ties into the scale of the neighborhood where it is built. The goal is to provide high-end quality communal and private spaces which foster a community anchor within and beyond its walls. While the current housing market for one and two-person households are far and few between, what is available lacks quality design and provides few amenities. Co-living provides for more households and lower rents than traditional housing, allowing the City to offer housing to lower income brackets while creating high-design, affordable housing stock. The Stereo Commons model is applicable throughout New York due to simpler construction methods, efficient space planning and cost effectiveness. In addition to a replicable model, there is also the opportunity to be contextually responsive by catering shared amenities to the area demographics and attracting a breadth of different types of residents.

Co-living in New York is gaining traction and this model can be incorporated into efforts already underway by HPD’s ShareNYC program recently launched in 2018.

02 IMAGES

 03 PROCESS

 04 INFORMATION


NEW YORK CITY, NY, USA

2019

BIG IDEAS FOR SMALL LOTS NYC

Alicia Olushola Ajayi, Michael Stinnett

6,500 SF

COMPETITION ENTRY

N/A

LOCATION

YEAR

CLIENT

COLLABORATORS

SIZE

STATUS

PHOTOGRAPHER